Leave a Message

Thank you for your message. We will be in touch with you shortly.

See all photos

7250 Eastmoor Drive Unit: 223

$475,000 7250 Eastmoor Drive Unit: 223, Denver, CO 80237
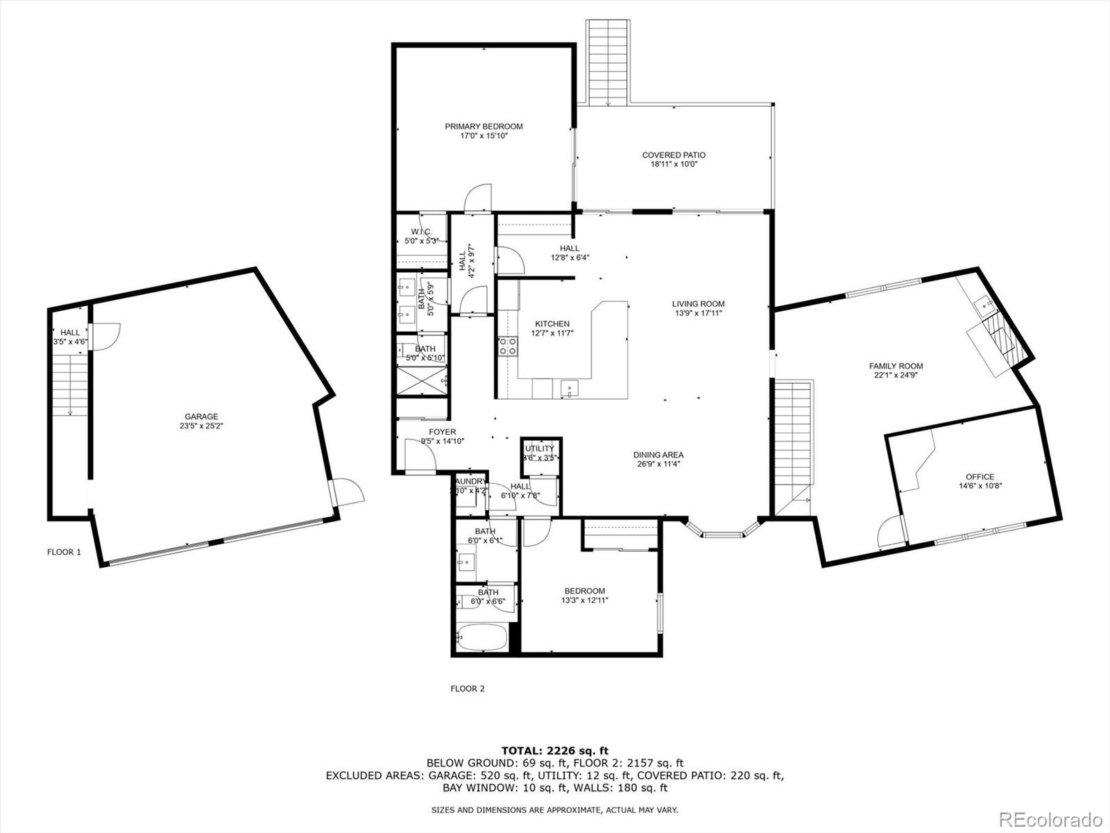
Spacious and remodeled home in amazing Central Denver neighborhood. This quiet location has a Rare 2-Car oversized heated Attached Garage with EV charger. Lock and Leave lifestyle offering over 2,000SqFt of main floor living, this 3-bedroom, 2-bath home (remodeled in 2021) features an open layout flooded with light. Residents enjoy scenic greenbelts, well-maintained common areas, and a quiet, welcoming atmosphere. Minutes away from parks, schools, and all of the popular amenities this Central Denver location is hard to beat. Beautifully remodeled kitchen and bathrooms. Butlers pantry / workspace area, large bedrooms beautifully finished floors and a separate living room area with Gas fireplace and wet bar. Enjoy shady West facing private outdoor spaces, generous storage, in-unit laundry, in addition to the 2-car attached there is another 1-car shared garage and 5 off street reserved parking spaces for added convenience. Whether you're hosting, working remotely, or relaxing in comfort, this home delivers the perfect mix of space, functionality, and location. Competitively priced and full of potential, it's a great opportunity for buyers seeking low maintenance, comfort, community, and long-term investment value in one of Denver's most established neighborhoods. No Metro District to deal with, thoughtfully designed community, well-established location and well cared for property, open space and mature trees - you just don't get this in new construction. Ideally located in the heart of the Denver Tech Center (DTC), enjoy a short distance to restaurants, businesses, shopping, and public trans. HOAs include everything. **This condo is warrantable and approved for FHA and VA loans**
  • For Sale
    Status
  • 3
    Bedrooms
  • 2
    Bathrooms
  • 1974
    Year Built
  • 2,200 Sq.Ft.
    Living Area

Features & Amenities

Area & Lot

  • Status: For Sale
  • Living Space: 2,200 Sq.Ft.
  • Total Area: 2,200 Sq.Ft.
  • MLS® ID: 7442697
  • Type: Condo
  • Year Built: 1974
  • Architecture Styles: Mid-Century Modern
  • Elementary School:Southmoor
  • Middle School: Hamilton
  • High School: Thomas Jefferson
  • School District: Denver 1

Interior

  • Total Bedrooms: 3
  • Total Bathrooms: 2
  • Full Bathrooms: 1
  • Three Quarter Bathrooms: 1
  • Flooring: Wood
  • Fireplace: Family Room
  • Appliances: Convection Oven, Cooktop, Dishwasher, Disposal, Dryer, Microwave, Oven, Range, Refrigerator, Washer
  • Other Interior Features: Ceiling Fan(s), Open Floorplan, Quartz Counters, Smoke Free, Walk-In Closet(s), Wet Bar

Exterior & Building

  • Stories: 1
  • Garage Space: 3.0
  • Water Source: Public
  • Utilities: Cable Available, Electricity Available, Electricity Connected, Internet Access (Wired), Natural Gas Available
  • Pool: Outdoor Pool
  • Roof: Composition
  • Lot Features: Greenbelt, Landscaped, Near Public Transit, Open Space
  • Parking: 220 Volts, Concrete, Dry Walled, Electric Vehicle Charging Station(s), Heated Garage
  • Heat Type: Forced Air
  • Air Conditioning: Central Air
  • Sewer: Public Sewer
  • HOA Amenities: Clubhouse, Coin Laundry, Fitness Center, Park, Pool, Tennis Court(s)
  • Security Features: Carbon Monoxide Detector(s), Smoke Detector(s)

Financial

  • Sales Price: $475,000
  • Real Estate Tax: $2,385/yr
  • HOA Fees: $954/mo
  • Zoning: S-TH-2.5
View Virtual Tour

7250 Eastmoor Drive Unit: 223

Work With Us

I am passionate about what my clients deserve, and I have high expectations and standards for the real estate experience that my clients receive.
Contact Us
Follow Us